inicio / viviendas / VIVIENDA UNIFAMILIAR EN TORROX COSTA.
venta

VIVIENDA UNIFAMILIAR EN TORROX COSTA.

20-TRX-12
Málaga
396.000€
(sin impuestos)

DESCRIPCIÓN

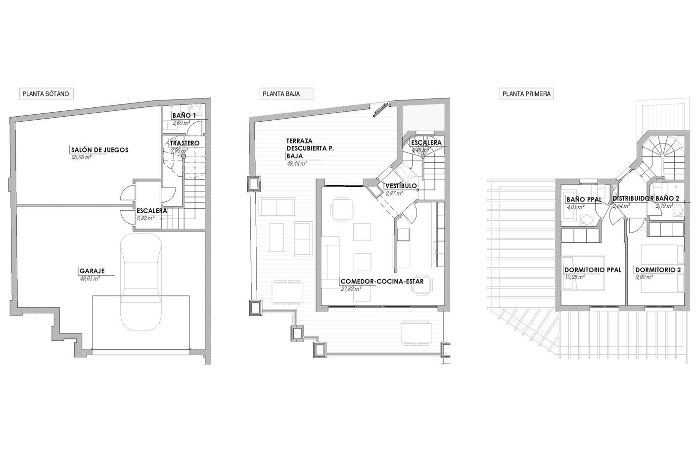
OPORTUNIDAD. Se ofrece vivienda unifamiliar en el término municipal de Torrox. La propiedad se ubica dentro de un entorno residencial tranquilo y bien comunicado, con acceso desde vial rodado y zonas comunitarias dentro del conjunto. La vivienda se distribuye en tres plantas comunicadas entre sí mediante escalera interior: sótano, planta baja y planta primera, y cuenta con cubierta inclinada de teja. Dispone de una superficie total construida de 161 m² ofreciendo estancias amplias y bien distribuidas. La planta sótano alberga dos plazas de aparcamiento, además de distribuidor, trastero y aseo, proporcionando un espacio cómodo tanto para estacionamiento como para almacenamiento. En la planta baja se encuentra el patio de acceso a la vivienda, un vestíbulo de entrada, cocina independiente, salón-comedor y una terraza exterior que aporta luminosidad y permite disfrutar del espacio al aire libre. La planta primera se distribuye en dos dormitorios y dos cuartos de baño, configurando una zona de descanso cómoda y funcional para la vida diaria. La vivienda forma parte de un conjunto residencial, lo que la convierte en una interesante opción tanto como residencia habitual, segunda vivienda o inversión en la Costa del Sol. ¡LLAME AHORA Y SOLICITE INFORMACIÓN SIN COMPROMISO! En cumplimiento del Decreto 218/ 2005, de 11 de octubre, por el que se aprueba el Reglamento de Información al Consumidor en la compraventa y arrendamiento de viviendas en Andalucía, se informa al cliente que los gastos notariales, registrales e impuestos que le sean de aplicación (ITP o IVA + AJD) y otros gastos inherentes a la compraventa no están incluidos en el precio. Validez de precios sujeto a disponibilidades y confirmación por propietarios. Se considera que la descripción y los precios indicados para las propiedades a la venta en este sitio web son correctos. No obstante, la información que contiene esta web puede ser sujeta a errores u omisiones. Las propiedades pueden ser sujetas a cambio de precio, venta o retirada del mercado. Para esta propiedad se encuentran incluidos en el precio de venta nuestros honorarios profesionales de agencia, por lo que no abonará ningún gasto extra por gestión o asesoramiento inmobiliario.

DETALLES DE LA PROPIEDAD

Dormitorios: 2
Baños: 3
Tamaño Propiedad: 181 m²
Id Propiedad: 4239285
Precio: 396.000€

CARACTERÍSTICAS DE LA PROPIEDAD

  • Edificio con garaje
  • Terraza

LOCALIZACIÓN

Avenida del Peñoncillo, 29793 , 29793 , Torrox

Propiedades Relacionadas

venta foto de VIVIENDA UNIFAMILIAR EN TORROX COSTA.
Málaga
418.000€
habitaciones 2 hab. baños 3 baños area 178 m²
venta foto de VIVIENDA UNIFAMILIAR EN TORROX COSTA.
Málaga
396.000€
habitaciones 2 hab. baños 3 baños area 239 m²
venta foto de VIVIENDA UNIFAMILIAR EN TORROX COSTA.
Málaga
384.000€
habitaciones 2 hab. baños 3 baños area 184 m²
venta foto de VIVIENDA UNIFAMILIAR EN TORROX COSTA.
Málaga
347.000€
habitaciones 2 hab. baños 3 baños area 161 m²